Arch Daily |
- Farmanieh Commercial-Office Building / Alidoost and Partners
- The Icon / Jackson Clements Burrows
- 8 Emerging Architects Create an Unexpected Playful Contrast for Greenwich's Design District
- "One Bucket at a Time" Pavilion Creates Waves in Winnipeg
- Blackheath / Architectural Farm
- Anupama Kundoo: 'Current Methods of Construction are Producing More Problems Than Solving It'
- Tschumi Pavillion / Academy of Architecture Groningen
- Drawing Event Will Celebrate the 20th Anniversary of the Guggenheim Museum Bilbao
| Farmanieh Commercial-Office Building / Alidoost and Partners Posted: 07 Oct 2017 07:00 PM PDT
© Deed studio From the architect. The status of the project was formed in the context of one of the main streets of Tehran in terms of administrative and commercial function. One of the project design concerns was developing a balance between the façade of business floor and the administrative floors, as well as attention to the urban context and the different and green nature of this area from the city of Tehran. © Deed studio Forasmuch as the high value of commercial property in this area of Tehran and in order to maximize the area and peak visibility, the entire front of the building main thoroughfare was designated for the commercial unit and at the back of the building, the administrative entrance lobby was dedicated to the administrative floors with a separate access. Considering the design of two units with approximately same areas in each floor, the layout of the staircase and elevator was prepared so that, each unit has both a south-facing and a north-facing brightness and view. Plans The distinct uses in the building required the types of cooling and heating system to be completely separated. With this presupposition and after consulting with the respective advisers, the cooling system of the complex was characterized by a combination of compression air chillers and the heating system by a central heating engine.
Regarding the design of the project, considering the use of the commercial space on the ground floor and the urgent need for transparency and maintaining the continuity of visibility from the inside to out and vice versa, it was decided that this transparency extends to the office floors, hence the main façade of the project was formed by broad windows surrounded by perimeter frames. Considering the wide casement frames on the south side of the office units and the amount of lightning, and considering the intensity of the penetration of sunlight into the units, it was tried to use sectioned aluminum plates to adjust the light and create shading, as well as diversifying the interior spaces. These plates are movable and can be relocated to reduce both the sunshine in the daytime and considering its shading ability to make it a pleasant and diverse atmosphere for users. © Deed studio The presence of trees on the Farmaniyeh street and the surrounding lands of the project led to the idea of depicting trees in abstract form on aluminum plates, and the sectioning were done in such a way that, as they come close, the negative space, visualized an embodiment of leaves and trunk of trees in mind. Elevation According to the above information, the body of Farmaniyeh administrative and commercial building was designed as a monolithic, transparent, interspersed with the surrounding environment, as well as with the inspiration of surrounding environment and its image on the second skin of the facade. © Deed studio This posting includes an audio/video/photo media file: Download Now |
| The Icon / Jackson Clements Burrows Posted: 07 Oct 2017 01:00 PM PDT © John Gollings
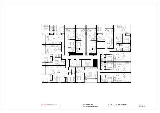
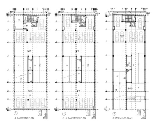
© John Gollings From the architect. This 17-storey apartment building is located in a prominent position at St Kilda Junction, a busy intersection used by cars, trucks, buses, cyclists and trams. Skirted by an eclectic mix of built forms - medium and high-rise buildings, street signs and billboards - the site is best described as an area to "drive through", a gateway to the popular tourism attractions of St Kilda, Luna Park and Melbourne's bayside suburbs. © Michael Gazzola While the formal composition of The Icon recalls a child playing with building blocks for the first time, it is in fact a highly considered assemblage of irregularly stacked boxes. The varied heights of the boxes provide an abstract connection between the building and its surrounding built context within this highly urbanised setting. west elevation On the lower levels, the blocks are arranged to engage directly with the heights of neighbouring buildings. The stacking effect resonates with the rising hillside of jumbled built forms directly to the south, providing datum points of reference from which future built forms can respond. © John Gollings The expanded mesh façade, a collaboration between JCB and artist Matthew Johnson, comprises 40 different colours. Conceived as a "living skin", the façade creates a moving dynamic when activated by the occupants while its translucent veil reveals the building envelope and living spaces behind. As the sun moves over the sky, each piece of metal changes color slightly, imbuing the building with a playful quality. At night the façade mesh glows, creating an engaging architectural form in the night skyline. south elevation The resulting pattern suggests a collection of communities, a stack of color-coded individual 'neighborhoods', each being identifiable from a distance. This sense of urban community is also fostered through the inclusion of a generous communal space which breaks out to an open deck overlooking the parks and bay beyond. © John Gollings Incorporating 14 levels of apartment living and 6 levels of car parking (3 basement levels & 3 above-ground podium levels), the development also features commercial office space & residential lobby at ground level. Vehicle access is provided off the rear laneway, accessed via Wellington Street. © Michael Gazzola The building's 115 apartments are comprised of 65 x 1-bedroom, 47 x 2-bedroom and 3 x 3-bedroom types with 125 car spaces, 72 bike spaces and 121 storage boxes. Nearby tram and bus stops provide direct access to public transport. 3rd / 4th floor plan The height of the building (17 levels) connects the north and south precincts of St Kilda Junction, while the taller buildings to the north (notably the Cadbury Schweppes building and the Marquisse apartment tower) become a trio of taller built urban forms providing a built form gateway to the city. © Michael Gazzola The massing is broken down by the irregular stacked box articulation. The rear of the building tapers away from its adjacent neighbors to limit overshadowing to the residential habitable rooftops immediately to the east and south-east. © John Gollings The apartments have a 6-star energy rating with environmental features including operable shutters to filter the sunlight and individual waste chutes for recycled and general waste. This posting includes an audio/video/photo media file: Download Now |
| 8 Emerging Architects Create an Unexpected Playful Contrast for Greenwich's Design District Posted: 07 Oct 2017 09:00 AM PDT Courtesy of Knight Dragon The Greenwich Design District is the next phase in London's largest single regeneration project - a new creative hub providing affordable workspaces and studios. Eight up and coming architecture practices have 'blindly' designed two buildings each, independently from one and other. The result is an amalgamation of 'architectural anarchy' and a 'neighborhood of playful contrasts.' Urban developers Knight Dragon are coordinating the entire development of Greenwich Peninsula, celebrating the diversity of art, design, technology, music, and food industries that this innovative district will be the home of. The mix of architecture stays true to the ideals of the district, presenting a provocative front of 'unexpected contrasts' brought together by the same natural paving throughout the pedestrianized quarter designed by Schulze+Grassov to encourage communication and interaction between the public. Courtesy of Knight Dragon Open studios are set around a large public square with workshop space starting at £10 per square foot, allowing the creative economy to grow whilst the businesses trade and intersect. As well as the studios for 1,800 of London's creatives, the district will host a market hall, basketball terrace on the roof and retail spaces for the work produced in the district. The architecture firms that were involved are listed below: Mole ArchitectsInspired by the male and female figures, Mole Architects play with the robust and delicate metal exteriors as one building is clad with CorTen weathered steel and the other is finished with iridescent paint whilst being equally sensitive on the interior with exposed beams and warm wooden ceilings. Courtesy of Knight Dragon Adam Khan ArchitectsThe rawness of the nearby construction sites influenced these two buildings to exemplify the roughness of semi-completed forms. The architects' exploration into raw beauty juxtaposes the tranquil interior for concentration and calmness. 6a ArchitectsThese two buildings are a 'pair of un-identical twins' that form similarities around the cut-out viewpoints in the rectangular form and 'colored blockwork on the concrete frame'. On the lower levels, there are larger spaces which lend themselves to the narrower studio space on top. Courtesy of Knight Dragon Architecture 00Social interaction is key in these designs, integrating large flexible spaces that can adapt to suit the inhabitants as well as leisure activities such as the basketball court on the roof terrace and pop-up bar. The contact with the public is further prompted by an external staircase that can be accessed at all times. Barozzi / VeigaDesigned for the artists, photographers, and sculptors, the building is clad in a polished aluminum. Based on the time of day or year, the reflection is everchanging and brightens the surrounding area. Courtesy of Knight Dragon Selgas CanoIntroducing nature into their buildings, their transparent market hall is caterpillar-shaped and filled with trees and foliage for visitors to sit and eat amongst. A winter garden adorns their second building to create a calm entrance for the workers and anyone else. AssemblageBoth buildings have a crisp, outer exterior undulating in either a vertical or horizontal formation, capturing the views based around each. An informal aesthetic is created from the unexpected twists and forms of the shell of the building whilst the white visual keeps it sleek. Courtesy of Knight Dragon David Kohn ArchitectsTraditionally built with red bricks, a green metal grid surrounds both the buildings which refer to the celebrated British architect James Stirling. One building hosts an illuminated sign on the roof whilst the other has a roof terrace overlooking the central park and will bear six new sculptures commissioned every year. The Design District is only a small phase in the overall Greenwich Peninsula regeneration but will feature in the center by the O2 arena and North Greenwich tube station. The entire £8.4billion transformation will create 15,720 new homes in 7 new neighborhoods, lining 1.6 miles of the River Thames. Calatrava has also designed a new mixed-used tube station as part of the project. Courtesy of Knight Dragon News Via: Knight Dragon. This posting includes an audio/video/photo media file: Download Now |
| "One Bucket at a Time" Pavilion Creates Waves in Winnipeg Posted: 07 Oct 2017 07:00 AM PDT © James Florio Employing unconventional building materials, the North American firms 5468796 Architecture, Factor Eficiencia and NYL Structural Engineers have teamed up to create "One Bucket at a Time," an interactive pavilion that has made waves as it traveled from Mexico to Canada. Read on to learn more about the installation. © James Florio From the architects. 5468796 Architecture (Canada) and Factor Eficiencia (Mexico) in collaboration with NYL Structural Engineers (EE.UU) worked together to build an exciting public facility called One Bucket at a Time, an exciting public installation that weaves together thousands of common 5-gallon painters’ buckets to form two giant waves. © James Florio Initially designed as a pavilion for people to explore and enjoy as part of Mextrópoli City Architecture Festival in March 2017, the installation was inspired by the prevalent use of buckets to hijack public space in Mexico City. © James Florio Received with great enthusiasm by visitors, these strong local origins of the bucket have been reinterpreted by the design team in a new project for the Winnipeg Design Festival and Nuit Blanche/Culture Days. The facility was open to the public with different activities from September 11th to the 30th. © James Florio One Bucket at a Time doubled its impact with an innovative community initiative: visitors to the installation were invited to “fill the wave” of buckets through individual donations of $20. Arriving in Canada empty, each bucket used to construct the project will leave for Mexico filled with Canadian generosity, with all proceeds to be given to Ayuda y Solidaridad con las Niñas de la Calle, a Mexican orphanage for at-risk girls and young women located in Mexico City. © James Florio © James Florio This posting includes an audio/video/photo media file: Download Now |
| Blackheath / Architectural Farm Posted: 07 Oct 2017 06:00 AM PDT © Ste Murray
© Ste Murray From the architect. An internal reorganisation and two-storey extension to the rear of this semi-detached house responds to a brief to create a flexible light-filled family home. An adaptable interconnecting sequence of spaces are defined by a series of timber interventions wrapping around a central void. Concept These timber elements define the thresholds from neighbourhood to home, new to old, and house to garden. A timber entrance pod, a newly rotated stair and a den area connect to a generous family room with folding and sliding screens. © Ste Murray Section A-A' The void draws light into the heart of the house and promotes visual connections from the living space to an enlarged landing at first floor. The scale of the new-build is broken into horizontal and vertical elements, forming deep reveals which provide solar shading and a sense of enclosure. These openings are orientated towards views of mature trees and a church spire to the west. © Ste Murray This posting includes an audio/video/photo media file: Download Now |
| Anupama Kundoo: 'Current Methods of Construction are Producing More Problems Than Solving It' Posted: 07 Oct 2017 05:00 AM PDT Wall House. Image © Javier Callejas India’s renowned architect Anupama Kundoo has experimented with locally sourced materials to develop Wall House and others for non-profit organizations to minimise impact in the construction process whilst maintaining the connection to the community. He tells us how he integrates hybrid technologies into the building, a response to the growing segregation in India and developing countries. The imbalance is fuelled by the introduction of expensive and environmentally insensitive high-tech buildings against the space inefficient low-tech vernacular for the expanding population. Wall house successfully achieves the balance by exploring means of using local materials in new ways based on extensive research and experimentation. This building serves as an example of contemporary architecture that solves the international socio-economic need whilst maintaining a low impact on the environment. The ongoing development of technologies that can be produced by unskilled workers acts as a prototype to understand how resources and spaces can be optimised. Volontariat. Image © Anupama Kundoo WorkAbout the Wall House, how did you become involved in building your house in Auromodele? And what were you looking to achieve with this house? When I moved to Auroville in 1990, I joined a community called Petite Ferme, in Auromodele area, where a few people lived in temporary ‘hut’ like structures that were built in natural materials: casuarina round wood, resting on granite stilts; finished with ‘pakamaram’ split-palm slats for flooring, and coconut thatch for roofing tied together with coconut rope and coconut calyx. I first built myself a hut too and lived there close to nature relying like the other community members on solar panels for electricity, as we were off the grid. Gradually over there next 10 years, we built more permanent houses for ourselves, however, we did so carefully, judiciously spending high-energy materials and local labor. The resulting structure, Wall House in Petite Ferme, is situated outside the planned city limits of Auroville, in Auromodele, an area designated for research and experimentation. WallHouse was the culmination of my ongoing extensive research and experimentation in low-impact building technologies that are environmentally and socio-economically beneficial, by negotiating the balance between hi-tech and low-tech and incorporating everyday materials through techniques that include the participation of those with lower skills and education with few skilled craftsmen. It compactly accommodates everyday needs whilst effortlessly expanding to absorb guests. It attempted to not only redefine the building program for a private-residence; it tested various spatial and technological innovations to inform other projects. Spatially, it redefined borders and transitional spaces in response to the climatic conditions and contemporary culture. Technologically, it involved local materials in new and inventive ways given the global resource crunch and rapid urbanization. Landscape design, an integral and inseparable part of the overall architecture, worked with the topography to integrate the indoor-outdoor transition as an integral experience. Such hybrid technologies focus on new ways of using age-old local materials that combine hand skills and local craft traditions alongside knowledge-based scientific systems. A laboratory for research and experimentation, this was a prototype for future development. Volontariat. Image © Deepshikha Jain ProcessWould you define your process of design as the combination of research and experimentation? Yes I think we are in a moment of great transitions, where the current ways of building are producing more problems than they solve: environmentally, economically as well as socially. Since architectural design is a process of synthesis of responses to various concerns, and innovation is very much the need of the hour, it is but natural that any relevant innovation would need to be supported by extensive research and experimentation, balancing theory and practice in an inclusive approach. Your work involves hi-tech and low-tech, could you expand more on this two elements of design? Perhaps in relation to low-income families that could benefit from this combination? Social segregation is a global reality that is growing rather than diminishing. Hi-tech comes at a high cost, that is not only in money terms, but also often environmental. India as well as most developing countries have not reached the same level of industrialization like the developed countries where everything is standardized to the other extreme making hand-crafting a luxurious alternative. Architecture must be appropriate to the context, and if buildings in developing countries are produced as high-tech as they are produced in the industrialized countries, the result will be exclusive, out of reach of the bulk of the population, and only affordable by the elite. This trend is worrying because it further enhances the segregation existing in a society with a contrasting urban form of slums vs high-tech towers, usually with significantly higher consumption of resources, and creating issues of identity disconnecting from the place where they are planted. Of course on the other hand, land is a critical resource. Many traditional low tech building systems are no longer appropriate to our density challenges and given the rapidly depleting natural resources such as wood. The right balance between high-tech and low-tech is key, and in my projects, I try to find the balance that would negotiate case to case, between high-tech low-tech but also between manmade and machine made to reach an appropriate socio-economic and environmental response. By the way, many vernacular methods of construction like compressive earth structures (domes, catenary vaults etc) in fact often require much more knowledge and complex analysis than column frame reinforced concrete structures, and in that sense could be considered sophisticated and high tech in our times. So perhaps structures built today with low-tech materials could sometimes be seen as high-tech structures too. Wall House. Image © Javier Callejas Impact of Architecture in SocietyIn your opinion, how can technology help build more socio-economical buildings? I think one of the key challenges today is to build buildings with significantly fewer resources. Precise engineering, in combination with choosing appropriate building materials, could significantly reduce the negative impact. On the other hand, the appropriate technology could create opportunities for people to take part in the construction of their own homes even if they are in the urban context. Such strategies could go a long way to achieve affordability through people’s engagement rather than the monopoly of the housing as industry where huge profits are made but alienate people from participating and offsetting costs. Houses are primarily homes to live in and not only to be seen as investments. Developing technologies that engage people’s time in the construction would empower people, build knowledge as well as build community. Social housing is a critical problem in Mexico, in your experience is there a possibility of developing a program that would involve training local people low tech building techniques with local materials for self-building? Housing has existed everywhere in the world for centuries wherever people have settled, and people have developed slowly the knowledge and skills to build with whatever resources are available. Post-industrialisation, housing has emerged as a commodity, and has been delivered to people without allowing any of their engagement. This trend, along with the rate of migration and urbanization across the world has resulted in an unprecedented challenge of affordable housing. Everywhere it is possible to allow people’s participation in at least certain tasks, but especially where housing cannot otherwise be afforded, the onus is on cities to produce social-housing in a manner that people can offset costs through their work. And yes, based on 25 years of experience in this field I definitely do see a tremendous scope for social housing that is produced in a holistic and alternative approach. © Javier Callejas TeachingYou are currently teaching at Camilo José Cela University in Madrid, do you think that schools of architecture should engage more with students training them crafting and self-building? I see Universities as places for specialized learning, but not as bubbles wherein students lose contact with ground realities, and the challenges facing our society. I like to expose my students to these realities throughout the design education process: real materials, real scale, real place, and real people. When theories are studied I don’t want them to lose contact with these realities but rather complement theoretical knowledge with experiential learning. As a professor of architecture, I would like to equip my students with the confidence to be able shape their future society, through knowledge and collaboration. By thinking with their hands, and staying connected in society, I would like to help them find a sense of certainty within the uncertainty. This posting includes an audio/video/photo media file: Download Now |
| Tschumi Pavillion / Academy of Architecture Groningen Posted: 07 Oct 2017 02:00 AM PDT © Peter de Kan
© Peter de Kan The Tschumi pavilion © Peter de Kan In April 2017, however, the idea emerged of having the pavilion once again conceptually approached from a strictly architectural perspective. We – three students of the Groningen Academy of Architecture – gratefully took on this challenge, seizing the opportunity to deploy the pavilion in the capacity in which it was initially meant to be used: as an urban exploration site for a new societal phenomenon. © Peter de Kan Floor Plan © Peter de Kan A new constant © Peter de Kan The Hereplein in the city of Groningen is a perfect example of a high-quality urban living area, which isn't permanently used as such yet. Here, we have managed to create a spatial area both within as well as around its transparent pavilion, which doesn't immediately seem to reveal what it contains. And that's precisely what it's also meant to symbolize. Because we would very much like you to use your own imagination in determining how you yourself would design the interior of this small space if it were your own! Sketch Design © Peter de Kan Section © Peter de Kan Experience © Peter de Kan Our design aims to enhance this disorientation: visitors find themselves first shut off from the outside world and subsequently a little lost within a strange sloping space. After slowly getting used to where they are, they start focusing outwards again. They then discover they are in a space with all kinds of different sightlines and entering light rays. With a renewed view the city starts reappearing through the wooden shell again. Elevation © Peter de Kan This posting includes an audio/video/photo media file: Download Now |
| Drawing Event Will Celebrate the 20th Anniversary of the Guggenheim Museum Bilbao Posted: 07 Oct 2017 01:00 AM PDT Courtesy of Flickr user: dbaron On October 15th four languages, three countries, and three astounding architectural projects will be brought together through a series of events and workshops to celebrate the 20th anniversary of the Guggenheim Museum Bilbao. The Solomon R. Guggenheim Foundation seeks to commemorate the event with a full day program of activities entitled Drawing the Guggenheim. Visitors can explore and sketch the museums during a variety of public drawing exercises, architectural tours, films and family events at each of the Guggenheim locations. Courtesy of Flickr Creative Commons In New York, visitors to Frank Lloyd Wright's Guggenheim will no doubt be focused on capturing the building's curved form and its contrasting relationship to Manhattan's strict grid. Wright produced over 700 sketches of the building, the construction of which was completed in 1959, six months after the architect's death. It seems appropriate then to facilitate drawing events which aim to explore different perspectives of the spaces and reflect on discoveries of the process together. The museum has been criticized in the past for overshadowing its art, almost in a literal way, with constant negotiation needed to hang pieces on curved walls. But on this day the focus will be on the building, its processional curved quarter-mile ramp dotted with people, the large light-filled atrium, and its ability, in this case, to inspire and become art rather than just house it. Courtesy of Flickr Creative Commons In Venice, Italy, the Peggy Guggenheim Collection will be brought to life at the Palazzo Venier dei Leoni where she lived and worked, offering free tours, life drawing and bilingual sketching prompts. A particularly interesting event will be "Peggy's Non-finito Palace" workshop, addressing the unfinished nature of the 18th century Grand Canal palace. The Palazzo was originally planned to have five stories but was completed with only one. This leaves the question of the finished project open, and children aged 4-10 will be invited to become architects and complete the palace using LEGO. Courtesy of Flickr user: cincinnato While all this is happening globally, the festivities will likely be most heightened at Frank Gehry's Guggenheim Bilbao, where free drawing materials and multilingual prompts will aid in the creation of a number of creative interpretations. With its complex forms and iridescent skin, the Guggenheim Bilbao is famous not just for its groundbreaking architectural language but also for changing the direction of the architecture discipline economically. This prompted the now often touted "Bilbao effect" – referring to the drastic boost in the economy of the city following the completion of the project. Courtesy of Flickr user: RonG8888 This was, however, its objective. In 1991 the Basque government envisioned the project as a means of invigorating the city's dilapidated port, pitching the idea to the Solomon R. Guggenheim Foundation. Gehry's scheme spoke to the future of building, utilizing the advanced software CATIA that allowed for the seemingly impossible structural solutions. The ways in which these will be captured via the drawing process will offer a new perspective of the machine-like building and define a relationship between the analog image and the digital process. All the drawings produced on the day can be photographed and uploaded with the tag #DrawingtheGuggenheim and in Bilbao can be left with the museum. More information about the event can be found here. News via: Solomon R. Guggenheim Foundation.
This posting includes an audio/video/photo media file: Download Now |
| You are subscribed to email updates from ArchDaily. To stop receiving these emails, you may unsubscribe now. | Email delivery powered by Google |
| Google Inc., 1600 Amphitheatre Parkway, Mountain View, CA 94043, United States | |


Nema komentara:
Objavi komentar