ponedjeljak, 28. studenoga 2016.

Arch Daily

ArchDaily

Arch Daily


Sacred Heart Cathedral of Kericho / John McAllen + Partners

Posted: 27 Nov 2016 07:00 PM PST

© Edmund Sumner © Edmund Sumner

© Edmund Sumner © Edmund Sumner © Edmund Sumner © Edmund Sumner

  • Executive Architect: Triad Architects
  • Ltd
Contractor: Esteel Construction
  • Ltd
Multi Disciplinary Engineers: Arup (UK)

  • Structural Engineers: Eng Plan (Kenya)

  • Electrical And Mechanical Engineering: EAMS (Kenya)

  • Qs: Barker and Barton (Kenya)

  • Furniture Design: Studio Propilis (Kenya)

  • Stained Glass And Artwork: John Clark, Glasspainter (Germany)
  • Client: Diocese of Kericho

© Edmund Sumner © Edmund Sumner

From the architect. Completed at the end of 2015, Kericho Cathedral is located in Kenya, approximately 250km South-West 
of Nairobi. It lies within the Highlands, west of the Great Rift Valley, enjoying magni cent views across tea plantations and surrounding hills. The Diocese was established in 1995 with a growing congregation and is led by the Most Reverend Bishop Emmanuel Okombo.

Site Plan Site Plan

The Cathedral's design creates a unique and sacred place for a congregation of 1,500 seated celebrants participating in the liturgy of the Roman Catholic Mass under one giant unifying roof. The strikingly inclined roof and its ascending interior volume - over 1,375 square metres in size - are the key characteristics behind its design.

© Edmund Sumner © Edmund Sumner

Bishop Emmanuel was particularly concerned to widen the nave as it approaches the altar to maximise the congregation's engagement with the celebration of the Mass and its climax, the Act of Communion. It opens completely along both transepts to promote natural ventilation and allow the congregation to leave the building at multiple points and expand onto the landscaped terraces and gardens.

© Edmund Sumner © Edmund Sumner

The aspiration was to create a structure that integrated seamlessly with its landscape setting, in both aesthetic and functional terms. The Cathedral's tiled-roof is now a distinctive form in the rolling panorama of Kericho's hills and valleys.

© Edmund Sumner © Edmund Sumner

The architectural challenge has been to ensure Kericho Cathedral embodied the Catholic liturgy and embraced its local congregation in a way that serves the Faith and the special qualities of its location and community. We believe our response is distinctive and universally welcoming.

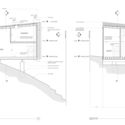
Section Section
Section Section

The ascending vaulted volume contained under a vast roof fuses African and ecclesiastically historic references. Care has been taken to shape the Cathedral's space and express the building's structure - the stone plinth, simply articulated, arched concrete frames and timber-ribbed vaulting are exposed in a strikingly crafted and honest manner.

© Edmund Sumner © Edmund Sumner

The building's simple palette of natural materials honours the faith and frugality of this rural African community. With the exception of the glass sheets used by the stained-glass artist, all the materials, including the Cypress timber (grown in Kericho), which was used for the ceiling, doors and furniture, and the clay tiles in the roof, were locally resourced and fabricated. The ceiling was constructed from finger-jointed Cypress timber slats, designed to accommodate the high range of humidity of the local environment.

© Edmund Sumner © Edmund Sumner

The granite used for the sanctuary was sourced from Kenya, and the soap stone used for the statues was sourced from the town of Kisii, located south of Kericho. The ooring was laid from the machine- cut Nairobi Blue stone.

© Edmund Sumner © Edmund Sumner

The practice has been committed to the involvement of skilled artisan trades and the improvement of local skills throughout the construction period. Some of these skills were used in the artwork situated in and around the Cathedral such as the striking mosaic on display. In addition the use of craft skills has assisted in the design of the ecclesiastical pattern for the roof which was designed by John Clark and was installed by local labourers.

Ground Floor Ground Floor

The complex geometry of the building was accommodated by an in-situ construction method specific to Kenya. The size of each structural frame required a complex pouring system for the concrete. The building's cladding material was carefully selected as washed terrazzo, known for its self-cleaning attributes and was applied by hand. The Nairobi blue stone cladding of the podium was hand-dressed and fixed by local masons.

© Edmund Sumner © Edmund Sumner

Buildability and the use of available local resources were key drivers for Kericho Cathedral. The project is designed to operate with modest energy, using natural daylight and few maintenance requirements. Its major impact in sustainability terms is therefore the materials with which it has been constructed, and the way they have been procured and managed through the construction process. Another key ambition was to minimise energy use, and consequently, reduce the building's maintenance cost and obligations.

This posting includes an audio/video/photo media file: Download Now

Cinnamon Tower and Pavilion / Bolles + Wilson

Posted: 27 Nov 2016 06:00 PM PST

© Christian Richters © Christian Richters

© Christian Richters © Christian Richters © Mitja Schneehage © Cordelia Ewert

  • Client: Groß & Partner Grundstücksentwicklungsgesellschaft mbH, Singapurstraße 1
  • Work Stage 5 Harbour Masters Building: SPINE Architects GmbH
  • Interiordesign Harbour Masters Building: DREIMETA, Armin Fischer
  • Work Stages 6 9: Construction management, LV Baumanagement AG
  • Structural Engineering: Ingenieurbüro Abel · Gebhart GmbH & Co. KG
  • Service Engineers: WINTER Beratende Ingenieure für Gebäudetechnik Hamburg GmbH

  • Building Physics: ITA Ingenieurgesellschaft für Technische Akustik mbH • Beratende Ingenieure VBI

  • Fire Protection: hhpberlin- Ingenieure für Brandschutz GmbH (Niederlassung Hamburg)
© Mitja Schneehage © Mitja Schneehage

The Cinnamon tower was conceived as freestanding campanile – a pin on a piazza. This unexpected idea won the 2006 competition for the neo-gothic Harbour Masters Building and surroundings.

Site Plan Site Plan

A tower was not anticipated in the competition programme, but the jury agreed that it anchors and at the same time leaves the only remaining historical building freestanding between the new megablocks of the 'Overseas Quarter'.  

© Christian Richters © Christian Richters

Slenderness is essential for a campanile. Over the course of its 8-year gestation this proportionality was respected – even while its function mutated from stacked restaurants to housing. The 13 x 16 m floor plan tapers towards the top. With a height of 56 meters the tower is 4-times higher than it is wide. 

Elevation Elevation
Section Section

How can such a thin chap be efficient?

The organisational answer is duplex apartments. Originally the concept foresaw seven apartments, each on 2 floors, a panoramic living deck on the upper level and bedrooms with punched windows below. Precise market analysis led to a variation of this formula: one triplex apartment at the top and some 1-floor apartments at lower levels. Built were ten apartments, four with 130 sqm, five with 185 sqm and one with 300 sqm. The tower has a gross floor area of 4.300 sqm and a volume of 16.000 cubic metres. At the ground level is a restaurant / commercial unit of 300 sqm.

© Cordelia Ewert © Cordelia Ewert

Strict high-rise regulations demanded an escape route from every floor via secure escape stair. The possibility to clean every window from the inside was also a criterion to be met. The spectacular view over Hamburg's skyline and of the New Elbphilharmonie should not be blurred by smudgy windows. Room-high windows on three sides of the living deck also allow the tracking of incoming cruise ships. 

Plan Plan

Facade panels of anodized aluminium sheets in different gradations of dark red correspond to the patchwork of BOLLES+WILSON's neighbouring 2008 pavilion, the first realized component of the Harbour Masters ensemble. In sunlight these aluminium panels take on colourful nuances while on cloudy days they assume a darker, more serious Paul-Klee like nuance. This is a building that changes its character according to the incidence of light, a new figure on Hamburg's skyline. 

© Cordelia Ewert © Cordelia Ewert

Product Description. The Facade panels of anodized aluminium sheets in different gradations of dark red correspond to the patchwork of BOLLES+WILSON's neighbouring 2008 pavilion, the first realized component of the Harbour Masters ensemble. In sunlight these aluminium panels take on colourful nuances while on cloudy days they assume a darker, more serious Paul-Klee like nuance. This is a building that changes its character according to the incidence of light, a new figure on Hamburg's skyline. 

This posting includes an audio/video/photo media file: Download Now

A House in Tsukishima / ICADA

Posted: 27 Nov 2016 12:00 PM PST

© Kouichi Torimura © Kouichi Torimura

© Kouichi Torimura © Kouichi Torimura © Kouichi Torimura © Kouichi Torimura

  • Architects: ICADA
  • Location: Tsukishima, Chuo, Tokyo 104-0052, Japan
  • Architect In Charge: Nariaki Chigusa
  • Area: 67.2 m2
  • Project Year: 2015
  • Photographs: Kouichi Torimura
  • General Contractor: Tsuki-zo
© Kouichi Torimura © Kouichi Torimura

This is a renovation project that making a very special space between inside and outside of the wall of the house. We create this small house renovation in pursuit of human body in the space.

© Kouichi Torimura © Kouichi Torimura

This four-story building is for single person in Tsukishima, Tokyo. Tsukishima is a reclaimed area during Edo period where has a long history of local community.

© Kouichi Torimura © Kouichi Torimura
Floor Plans Floor Plans
© Kouichi Torimura © Kouichi Torimura

Although the building, "The house in Tsukishima" has a simple appearance, this is a conceptual housing project; it focuses on the relationship between human body and the living space. "The Ring" and "The Cross" are the two features We designed to realize the concept.

© Kouichi Torimura © Kouichi Torimura

The Ring
Is made of polished stainless. It is put between inside and outside of the wall so that the Ring creates extra 'spaces' is difficult to understand the depth. This 'space' is for the wall, not for human. This contradictory perception change the seemingly normal life space to those foreign.

© Kouichi Torimura © Kouichi Torimura

The Cross
Is made of wires and very light LED tubes and they are settled at the stairwell in a three dimensional shape. This lightning equipment "The Cross", and its 3-D shape give us a feeling of alienation from the space so that those ordinary walls, ceiling and space easily turn to be symbolic things. 

© Kouichi Torimura © Kouichi Torimura

Our indication is that such "disappearance" of human body makes one's mind closer to the space through the experience of living in this house. 

© Kouichi Torimura © Kouichi Torimura

Each furniture, lighting equipment and doors are exclusively designed for this building to provide modest symbolic attitude in the interior. Especially, the closet set at the center of the living room is made of transparent material shows the visual independency of the closet from the wall and wooden floor – the factors surround one's body–.

This posting includes an audio/video/photo media file: Download Now

RAW Architecture's Brava Casa is a Philosophy of Life and Form

Posted: 27 Nov 2016 08:00 AM PST

© Eric Dinardi © Eric Dinardi

RAW Architecture's Brava Casa 99 Percent Sumarah was inspired by an Indonesian form of meditation centered on the philosophy of life. Sumarah is defined as a "total surrender," allowing the partial ego to give way to the universal self.

© Eric Dinardi © Eric Dinardi © Eric Dinardi © Eric Dinardi

© Eric Dinardi © Eric Dinardi

The practice is based on developing sensitivity and acceptance through deep relaxation of body, feelings and mind. Its aim is to create inside ourself the inner space and the silence necessary for the true self to manifest and to speak to us said the architects. 

© Eric Dinardi © Eric Dinardi

Raw Architecture's team explained that a total surrender to life allows one to see the real beauty in the world. They added that this cycle between mind and soul is a continuous loop, which was the inspiration behind their plan for the structure.  

© Eric Dinardi © Eric Dinardi

Created with polycarbonate by Danpalon, the project is connected with steel elbow and screw bolt. By creating space within space, the architects have, in essence, created life within life by filling each box with plants or fish. 

Looking at the elevation of the structure resonates with the Indonesian mountains that possess sacred meanings of human achievement. Moreover, the box-like composition was influenced by the stacking system in Indonesian temples. Ancient temples, like Borobudur and Prambanan, were formed by stacking many blocks of stone. 

© Eric Dinardi © Eric Dinardi

The best part of the structure? Its transparency. One can see through the boxes and into other forms of its life systems. 

© Eric Dinardi © Eric Dinardi

News Via: RAW Architecture

This posting includes an audio/video/photo media file: Download Now

HKS-Designed L.A. Stadium Will Be the Largest in the NFL

Posted: 27 Nov 2016 06:00 AM PST

Courtesy of HKS Courtesy of HKS

After 21 years of playing in St. Louis, the Rams are moving back to Los Angeles — and a new stadium will greet them. Slated to open in 2019, HKS's new LA Stadium will be the largest in the NFL (covering three acres) in addition to the home of the Los Angeles Rams. Beyond sports usage, the structure will also host a performing arts center and sweeping public gardens. 

Courtesy of HKS Courtesy of HKS Courtesy of HKS Courtesy of HKS

Courtesy of HKS Courtesy of HKS

The regional climate and cultural DNA of Southern California and Los Angeles are the foundation of our design, said HKS Principal Mark A. Williams, AIA, LEED AP. We have crafted a design that is responsive to its site, the community and the global stage of sports and entertainment. We believe this project represents a very important piece of architecture for Southern California and will broaden the fan experience in sports and entertainment venues.

Courtesy of HKS Courtesy of HKS

After thorough research on the site's climate, the architects created a design that adapts to its surrounding environment and provides a pleasant interior venue. The perforated metal skin that wraps around the stadium includes outdoor rooms and plaza spaces — blurring the line between inside and outside. Additionally, an ETFE (transparent roof skin that protects guests from the outside elements) canopy allows for year-round events.

Courtesy of HKS Courtesy of HKS

From day one, Mr. Kroenke talked to us about his vision to elevate the fan experience, continued Williams. He challenged us to create a venue unlike any other in sports that celebrated the NFL's return to Los Angeles.

Furthermore, the venue will provide 70,000 fixed seats, with the option to entertain more than 100,000 fans. It will also host the Super Bowl in 2021. 

Courtesy of HKS Courtesy of HKS

HKS, a global presence with a large repertoire, will be working with Kroenke Sports and Entertainment on this groundbreaking project. Stan Kroenke, owner and property developer of the Rams, is attributed with bringing the Rams back to Los Angeles. 

As for the project's estimated price tag? $2.6 billion.

News Via: HKS Architects

This posting includes an audio/video/photo media file: Download Now

Boulevard Club West Wing Expansion / Teeple Architects

Posted: 27 Nov 2016 05:00 AM PST

© Scott Norsworthy              © Scott Norsworthy

© Scott Norsworthy              © Scott Norsworthy              © Scott Norsworthy              © Scott Norsworthy

  • Architects: Teeple Architects
  • Location: Toronto, ON, Canada
  • Lead Architects: Stephen Teeple (Design Principal), Chris Radigan, Martin Baron
  • Area: 29000.0 ft2
  • Project Year: 2015
  • Photographs: Scott Norsworthy
  • Other Participants: The Boulevard Club and PHA Project Management
© Scott Norsworthy              © Scott Norsworthy

The Boulevard Club is an iconic structure on Toronto's western waterfront, immediately identifiable from both the land and the lake.  The new West Wing expansion is a two-storey addition connected to the west side of the historic centre block building that was designed for the Parkdale Canoe Club by Molesworth West & Secord Architects of Toronto in 1923.

Plan Site Plan Site

The expansion includes change rooms, a spa and wellness centre, five badminton courts, a multi-purpose gymnasium, and numerous small lounges.  The volumetrically large and windowless program is creatively organized as a sculptural form on the tight site while taking full advantage of the views to the lake and respecting the water views from the north.

© Scott Norsworthy              © Scott Norsworthy

The building continues the tradition of pavilion architecture along the western waterfront.  

Section Section

Creativity & Ccontext

The project organizes the large, windowless volumes of the program elegantly and naturally on a very tight site and seamlessly extends the circulation flow of the existing building.  The mass of the large spaces within the building are mitigated by a large, flowing roof.  The roof starts low on the east to connect to the historic clubhouse and to maintain views from the Parkdale neighbourhood to the north, and then rises to the west over the large badminton courts.  The roof is an iconic landmark from the water and a folly-in-the-park from the land side.  The complete building is a sculptural composition of three roofs, each representative of its era: the early 20th century centre block, the exuberant mid-century modern roof of the east wing, and the computer-generated curves of the 21st century addition.  

© Scott Norsworthy              © Scott Norsworthy

Sustainability 

The building is clad in a high-albedo white aluminum standing seam that is installed on thermally-broken clips that minimize cold-bridging to maximize the effect R-value of the assembly.  

The site does not have access to a storm sewer system and historically rain water has been discharged directly into the lake.  The project helps to protect Toronto's western beaches and the lake by incorporating UV treatment system to reduce the amount of untreated rainwater entering the lake from the site.  

© Scott Norsworthy              © Scott Norsworthy

Good Design Good Business 

The new West Wing is an important part of the club's strategy to attract the next generation of members to the club. Newer demographics are looking for a more health and fitness focus in their club without losing the important social aspect. The West Wing incorporates social spaces into the sports facilities, such as lounge spaces within the locker rooms, a badminton viewing gallery and tournament gathering space, and gymnasium doors that open directly onto a beautiful roof terrace where yoga and fitness classes can spill outside.  The social and fitness functions of the club are now much more integrated.  

An increasing number of potential members want to enjoy their club experience with their children.  The club is attracting young families with the addition of large family change rooms with the same luxurious finishes as the adult change rooms, and a new multi-purpose gymnasium to house the club's summer camps that were previously in a tent on the front lawn.  The project welcomes families and children by integrating them fully into the club experience.  

© Scott Norsworthy              © Scott Norsworthy

Legacy 

Each of the three main blocks of the building were built two generations apart.  Each faithfully represents its own era, creating an intergenerational dialogue in architecture.  The new West Wing is this generation's contribution to that dialogue. 

The city has expressed a vision of the future with continuous public access along the entire waterfront.  The West Wing is held back on the south to be no closer to the water than the existing building to work with the city's vision. 

© Scott Norsworthy              © Scott Norsworthy

Product Description. Kalzip standing seam aluminum is an economical system for cladding complex and curvilinear forms. Panels of almost unlimited length are formed on site, minimizing end-to-end joints and helping to the form a fluid continuity. Thermally-broken stand-offs minimize cold-bridging through the insulation to improve building performance.

This posting includes an audio/video/photo media file: Download Now

Studio Anne Holtrop Wins 2016 Challenge of the Time Prize

Posted: 27 Nov 2016 04:00 AM PST

Dutch Waterline Museum / Studio Anne Holtrop. Image Courtesy of the International Architectural Charitable Foundation of Iakov Chernikhov (ICIF) Dutch Waterline Museum / Studio Anne Holtrop. Image Courtesy of the International Architectural Charitable Foundation of Iakov Chernikhov (ICIF)

Dutch firm Studio Anne Holtrop has won the 2016 Challenge of The Time, an international architectural prize named by architect and artist Iakov Chernikhov. Now in its fifth iteration, the prize honors young architects up to 44 years old for the "best architectural project concepts that [feature an] innovative approach" and face "challenges to the future."

Studio Anne Holtrop's work varies from spatial temporary models and pavilions to extensive public buildings. For instance, over the past several years, the studio has designed the Museum Fort Behten near Utrect, and the National Pavilion of Bahrain for the EXPO exhibition in Milan, as well as for the Venice Biennale.

Trail House Temporary Museum / Studio Anne Holtrop. Image Courtesy of the International Architectural Charitable Foundation of Iakov Chernikhov (ICIF) Museum Fort Echten / Studio Anne Holtrop. Image Courtesy of the International Architectural Charitable Foundation of Iakov Chernikhov (ICIF) National Pavilion of Bahrain for the Venice Biennale / Studio Anne Holtrop. Image Courtesy of the International Architectural Charitable Foundation of Iakov Chernikhov (ICIF) National Pavilion of Bahrain for the Milan EXPO / Studio Anne Holtrop. Image Courtesy of the International Architectural Charitable Foundation of Iakov Chernikhov (ICIF)

Trail House Temporary Museum / Studio Anne Holtrop. Image Courtesy of the International Architectural Charitable Foundation of Iakov Chernikhov (ICIF) Trail House Temporary Museum / Studio Anne Holtrop. Image Courtesy of the International Architectural Charitable Foundation of Iakov Chernikhov (ICIF)

Two representatives from the Studio received the award at the Embassy of the Kingdom of the Netherlands in Moscow. The Studio was selected out of 74 nominees from 23 countries.

National Pavilion of Bahrain for the Venice Biennale / Studio Anne Holtrop. Image Courtesy of the International Architectural Charitable Foundation of Iakov Chernikhov (ICIF) National Pavilion of Bahrain for the Venice Biennale / Studio Anne Holtrop. Image Courtesy of the International Architectural Charitable Foundation of Iakov Chernikhov (ICIF)

Laureates of the Change of The Time prize have historically gone on to become "stars of contemporary architecture," according to the International Architectural Charitable Foundation of Iakov Chernikhov (ICIF). Laureates include Piere Vittorio Aureli and Junya Ishigami.

National Pavilion of Bahrain for the Milan EXPO / Studio Anne Holtrop. Image Courtesy of the International Architectural Charitable Foundation of Iakov Chernikhov (ICIF) National Pavilion of Bahrain for the Milan EXPO / Studio Anne Holtrop. Image Courtesy of the International Architectural Charitable Foundation of Iakov Chernikhov (ICIF)
Museum Fort Echten / Studio Anne Holtrop. Image Courtesy of the International Architectural Charitable Foundation of Iakov Chernikhov (ICIF) Museum Fort Echten / Studio Anne Holtrop. Image Courtesy of the International Architectural Charitable Foundation of Iakov Chernikhov (ICIF)

News via the International Architectural Charitable Foundation of Iakov Chernikhov (ICIF).

This posting includes an audio/video/photo media file: Download Now

Watch Harvard GSD Celebrate Zaha Hadid in this Discussion Including Patrik Schumacher and Elia Zenghelis

Posted: 27 Nov 2016 01:30 AM PST

In October, the Harvard Graduate School of Design (Harvard GSD) hosted "Zaha Hadid: A Celebration," an evening of presentations and discussion around the extraordinary work and life of the late Zaha Hadid. Six months on from Hadid's sudden passing in March, the Dean of Harvard GSD, Mohsen Mostafavi, introduced the event as the appropriate time to focus on creative recognition and "an evening of incredible celebration and enjoyment."

Following Mostafavi's introduction, there were three presentations from speakers who all had a different relationship to Hadid. First up was Elia Zenghelis, speaking from his experience as an early teacher of Hadid. Patrik Schumacher followed, speaking as professional partner and collaborator, and finally Zhang Xin, co-founder and CEO of SOHO China, as Hadid's client and friend. All three speakers had much to say on both the work and life of Hadid, with personal stories woven into more architectural discussion. The event ended with a panel discussion, with all three presenters led by Mostafavi and questions from the audience.

You can watch the full 2-hour event above, or check out our summary of the highlights below to jump to the section that interests you most:

  • 0:00-10:12: Introduction by Mohsen Mostafavi, Dean of Harvard GSD and also a friend of Hadid, in which he discusses meeting her on the first day of architecture school.
  • 10:12-23:24: Elia Zenghelis, Hadid's teacher at the AA, likened her loss to "losing a daughter," even though she treated him "like  a toddler." He discusses her work as a student including her Malevich-influenced museum for the 19th Century and competition entry for the Prime Minister's House in Ireland.
  • 23:30-39:14: Patrik Schumacher prefaces his presentation by explaining how as a student, "Zaha transformed the whole discipline for me." He discusses her "best moves" as an architect and problem solver, subtitling them under explosion, calligraphy, distortion and landscape analogy.
  • 39:30-57:57: Zhang Xin gives her story as a client and friend of Zaha. She begins with her first time meeting Hadid, after she won one of Zhang's competitions, and ends with an uncanny anecdote from her attendance at Hadid's funeral.
  • 58:28-1:41:22: Panel discussion and questions from the audience led by Mostafavi.

This posting includes an audio/video/photo media file: Download Now

Arts Building for The American School in London / Walters & Cohen Architects

Posted: 27 Nov 2016 01:00 AM PST

© Marcus Peel © Marcus Peel

© Marcus Peel © Dennis Gilbert/VIEW © Dennis Gilbert/VIEW © Dennis Gilbert/VIEW

  • Contractor : ISG
  • Building Services : Ernest Griffiths
  • Structure : Price & Myers
  • Project Manager : Martin Long in association with TGA
  • Presentation Model : Bullfrog Models
© Dennis Gilbert/VIEW © Dennis Gilbert/VIEW

From the architect. In 2011 Walters & Cohen won an invited competition to design a new arts building for the American School in London.

Section Section

Taking its cue from the mass and footprint of the listed, semi-detached villas on the site adjacent, the four-storey building is designed to resemble a single large property. The complexity of the project is heightened by its location on a prominent corner plot in the St John's Wood conservation area, where proposed developments attract a lot of attention. We liaised with the school's distinguished board of governors, ward councillors and local politicians, and presented the concept design in a three-day public exhibition. The scheme was extremely well received.

© Dennis Gilbert/VIEW © Dennis Gilbert/VIEW

A range of materials for the external façades were researched and presented to the planners and governors, including recycled glass, stucco flutes and marble; stone was considered the most appropriate material on account of its elegance and traditional qualities. The resulting façade is a unique piece of design that draws on the timeless quality of stone, expressed in a truly contemporary manner. Light plays on the façade, flattening and disguising the flute pattern one minute, only to boldly express it in the next. The building has both an elegant lightness and a weight and gravitas, unique and contemporary yet effortlessly taking its place as an equal among its more mature neighbours.

Ground Floor Plan Ground Floor Plan

The new building's sculptural quality is fitting to the work that goes on inside. The ground floor provides exhibition space, with art, sculpture, ceramics and photography studios on the other three floors. An elegant concrete frame provides long span, column-free studio space at all levels, bringing in daylight from the north and south and creating a flexible, spacious and comfortable environment in which pupils can develop their art.

© Dennis Gilbert/VIEW © Dennis Gilbert/VIEW

Product Description. Bespoke stone façade: S McConnell & Sons with Stone Cladding International Limited

The façade of the new art building at the American School in London is a unique piece of design that draws on the timeless quality of stone, expressed in a truly contemporary manner. It is the product of close collaboration between the design team and the stonemason and thoroughly embraces what modern manufacturing techniques can offer.

© Dennis Gilbert/VIEW © Dennis Gilbert/VIEW

The stonemason S. McConnell & Sons' skills and computer-driven manufacturing processes allowed each stone of the façade to be cut to an individual pattern, which meant there were more possibilities to design something innovative and unique to the School. The chosen motif creates a gradual fade on the vertical flutes, from 20mm deep at the base to a flat-faced stone at the head of the building. The complex 3D-modelling expertise of the stonemason made a non-linear reduction possible, meaning that the depth of the flute remains greater for the first two thirds of the building before tapering more quickly above the head of the windows.

© Dennis Gilbert/VIEW © Dennis Gilbert/VIEW

This posting includes an audio/video/photo media file: Download Now

50 Impressive Details Using Wood

Posted: 26 Nov 2016 11:00 PM PST

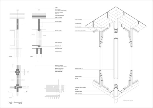
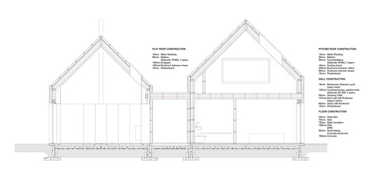
Over the course of history the unique characteristics of wood, which are dependent upon the species of the tree and the location in which it has grown, have enabled humanity to flourish in all parts of the globe. The architectural details of wooden construction therefore show a great diversity of meetings and joints, showing not only a project's constructive and structural logic, but also embodying the value and complexity of each project.

Take a look at these 50 construction details of projects that stand out for their clever use of wood.

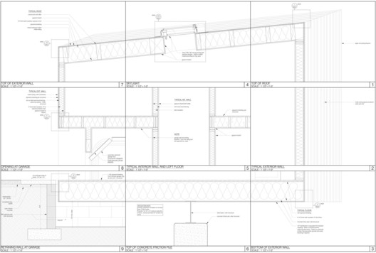
1. Hostal Ritoque / Alejandro Soffia + Gabriel Rudolphy 

via © Gabriel Rudolphy + Alejandro Soffia via © Gabriel Rudolphy + Alejandro Soffia

© Juan Durán Sierralta via © Gabriel Rudolphy + Alejandro Soffia © Juan Durán Sierralta via © Gabriel Rudolphy + Alejandro Soffia

2. Whitetail Woods Regional Park Camper Cabins / HGA Architects and Engineers 

via © HGA Architects and Engineers via © HGA Architects and Engineers

© Pete VondeLinde © Paul Crosby Photography © Paul Crosby Photography © Pete VondeLinde

3. Belvedere For Koblenz / Dethier Architectures 

Courtesy of © Dethier Architectures Courtesy of © Dethier Architectures

Courtesy of © Dethier Architectures Courtesy of © Dethier Architectures Courtesy of © Dethier Architectures Courtesy of © Dethier Architectures

4. Name Observatory, Birdwatching Circuit / Mauricio Orlando Rojas Riquelme 

via © Mauricio Orlando Rojas Riquelme via © Mauricio Orlando Rojas Riquelme

© Mauricio O. Rojas Riquelme © Mauricio O. Rojas Riquelme © Mauricio O. Rojas Riquelme © Mauricio O. Rojas Riquelme

5. AYC / DX Arquitectos 

via © DX Arquitectos via © DX Arquitectos

© Pablo Blanco via © DX Arquitectos © Pablo Blanco via © DX Arquitectos

6. Nest We Grow / Kengo Kuma & Associates + College of Environmental Design UC Berkeley  

via © College of Environmental Design UC Berkeley + Kengo Kuma & Associates via © College of Environmental Design UC Berkeley + Kengo Kuma & Associates

via © College of Environmental Design UC Berkeley + Kengo Kuma & Associates via © College of Environmental Design UC Berkeley + Kengo Kuma & Associates © Shinkenchiku-sha via © College of Environmental Design UC Berkeley + Kengo Kuma & Associates

7. Tierras Blancas House / Alberto Browne + Hernán Fontaine 

Courtesy of © Alberto Browne Courtesy of © Alberto Browne

Courtesy of © Alberto Browne Courtesy of © Alberto Browne Courtesy of © Alberto Browne Courtesy of © Alberto Browne

8. House Zilvar / ASGK Design 

via © ASGK Design via © ASGK Design

© Petra Hajska © Petra Hajska © Petra Hajska © Petra Hajska

9. BCN Re.Set - Identity Pavilion / Urbanus 

via © Urbanus via © Urbanus

© Marcela Grassi © Runze Hu © Runze Hu © Runze Hu

10. Wengawa House / Katsutoshi Sasaki + Associates 

Courtesy of © Katsutoshi Sasaki + Associates Courtesy of © Katsutoshi Sasaki + Associates

Courtesy of © Katsutoshi Sasaki + Associates Courtesy of © Katsutoshi Sasaki + Associates Courtesy of © Katsutoshi Sasaki + Associates Courtesy of © Katsutoshi Sasaki + Associates

11. Stranded House / WHALE! 

via © WHALE! via © WHALE!

© Hugo Bertolotto © Hugo Bertolotto © Hugo Bertolotto © Hugo Bertolotto

12. Jetavan / Sameep Padora & Associates 

via © Sameep Padora & Associates via © Sameep Padora & Associates

© Edmund Sumner © Edmund Sumner © Edmund Sumner © Edmund Sumner

13. Casa Cuidador “Hijuela El Durazno” / emA Arquitectos 

Courtesy of © Ema Arquitectos Courtesy of © Ema Arquitectos

Courtesy of © Ema Arquitectos Courtesy of © Ema Arquitectos Courtesy of © Ema Arquitectos Courtesy of © Ema Arquitectos

14. Brooklyn Garden Studio / Hunt Architecture 

via © Hunt Architecture via © Hunt Architecture

© Brian Ferry © Brian Ferry © Brian Ferry via © Hunt Architecture

15. Big & Small House / Anonymous Architects 

via © Anonymous Architects via © Anonymous Architects

via © Anonymous Architects via © Anonymous Architects via © Anonymous Architects via © Anonymous Architects

16. Fiscavaig / Rural Design 

via © Rural Design via © Rural Design

via © Rural Design via © Rural Design via © Rural Design via © Rural Design

17. Hotel Hotel Lobby and Nishi Grand Stair Interior / March Studio 

via © March Studio via © March Studio

© John Gollings © John Gollings via © March Studio © John Gollings

18. MadHouse / LIONarchitecture 

via © LIONarchitecture via © LIONarchitecture

© John Liams © John Liams © John Liams © John Liams

19. MIMA Light / MIMA Architects 

via © MIMA Architects via © MIMA Architects

© Jose Campos © Jose Campos © Jose Campos via © MIMA Architects

20. Rambla House / LAND Arquitectos 

via © LAND Arquitectos via © LAND Arquitectos

via © LAND Arquitectos © Sergio Pirrone © Sergio Pirrone © Sergio Pirrone

21. Casa de Madera / Estudio Borrachia 

via © Estudio Borrachia via © Estudio Borrachia

© Fernando Schapochnik © Fernando Schapochnik © Fernando Schapochnik © Fernando Schapochnik

22. Endesa Pavilion / Institute for Advanced Architecture of Catalonia (IAAC) 

via © Institute for Advanced Architecture of Catalonia (IAAC) via © Institute for Advanced Architecture of Catalonia (IAAC)

© Adrià Goula © Adrià Goula © Adrià Goula © Adrià Goula

23. Lantern Pavilion / AWP / Atelier Oslo 

via © AWP Atelier Oslo via © AWP Atelier Oslo

© Jonas Adolfsen via © AWP Atelier Oslo © Jonas Adolfsen © Jonas Adolfsen

24. Nakai Residence / DesignBuildBLUFF 

via © DesignBuildBLUF via © DesignBuildBLUF

© James Anderson © James Anderson © James Anderson © James Anderson

25. Educational Building In Mozambique / Masterstudents of Bergen School of Architecture 

via © Bergen School of Architecture via © Bergen School of Architecture

© Tord Knapstad © Ina Bakka Sem-Olsen © Stine Bjar © Sixten Rahlff

26. Holmes - Fuentealba House / Francis Pfenniger 

via © Francis Pfenniger via © Francis Pfenniger

© Carlos Hevia © Carlos Hevia © Carlos Hevia © Carlos Hevia

27. Private Residence on Isle of Skye / Dualchas Architects 

via © Dualchas Architects via © Dualchas Architects

© Andrew Lee © Andrew Lee © Andrew Lee © Andrew Lee

28. Tasting Room at Sokol Blosser Winery / Allied Works Architecture  

via © Allied Works Architecture via © Allied Works Architecture

© Jeremy Bitterman © Jeremy Bitterman © Jeremy Bitterman © Jeremy Bitterman

29. Tete in L'air / KOZ Architectes 

via © KOZ Architectes via © KOZ Architectes

© Cécile Septet © Cécile Septet © Cécile Septet © Cécile Septet

30. FENIX House / Equipo UTFSM 

via © Equipo UTFSM via © Equipo UTFSM

© María Cirano © María Cirano © María Cirano © María Cirano

31. GG Bioclimatic House / Alventosa Morell Arquitectes 

via © Alventosa Morell Arquitectes via © Alventosa Morell Arquitectes

© Adrià Goula © Adrià Goula © Adrià Goula © Adrià Goula

32. Casa Adpropeixe / Carlos Castanheira & Clara Bastai 

via © Carlos Castanheira & Clara Bastai via © Carlos Castanheira & Clara Bastai

via © Carlos Castanheira & Clara Bastai ©  FG | SG - Fernando Guerra, Sergio Guerra ©  FG | SG - Fernando Guerra, Sergio Guerra ©  FG | SG - Fernando Guerra, Sergio Guerra

33. Community Centre / Beer Architektur Städtebau 

via © Beer Architektur Städtebau via © Beer Architektur Städtebau

© Fernando Alda © Fernando Alda © Fernando Alda © Fernando Alda

34. Théâtre d'eau Swimming Pool / LOG Architectes 

via © LOG Architectes via © LOG Architectes

© Edouard Decam via © LOG Architectes © Edouard Decam © Edouard Decam

35. The Boathouse / TreStykker 2012 

Courtesy of © TreStykker 2012 Courtesy of © TreStykker 2012

Courtesy of © TreStykker 2012 Courtesy of © TreStykker 2012 Courtesy of © TreStykker 2012 Courtesy of © TreStykker 2012

36. Cottage in Tsumari / Daigo Ishii + Future-scape Architects 

via © Daigo Ishii + Future-scape Architects via © Daigo Ishii + Future-scape Architects

via © Daigo Ishii + Future-scape Architects © Koji Fujii © Koji Fujii © Koji Fujii

37. Winter Cabin In Malalcahuello / MC2 Arquitectos 

via © MC2 arquitectos via © MC2 arquitectos

via © MC2 arquitectos via © MC2 arquitectos via © MC2 arquitectos via © MC2 arquitectos

38. Terraza TEA / Estudio MMX

via © Estudio MMX via © Estudio MMX

© Yoshihiro Koitani © Yoshihiro Koitani © Yoshihiro Koitani © Yoshihiro Koitani

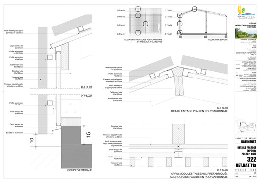
39. Etable De Stabulation Libre / LOCALARCHITECTURE 

Courtesy of ©  LOCALARCHITECTURE Courtesy of © LOCALARCHITECTURE

Courtesy of ©  LOCALARCHITECTURE Courtesy of ©  LOCALARCHITECTURE Courtesy of ©  LOCALARCHITECTURE Courtesy of ©  LOCALARCHITECTURE

40. La Roca House / Mathias Klotz 

via © Mathias Klotz via © Mathias Klotz

© Roland Halbe © Roland Halbe © Roland Halbe © Roland Halbe

41. Awasi Patagonia Hotel / Felipe Assadi + Francisca Pulido 

via © Felipe Assadi + Francisca Pulido via © Felipe Assadi + Francisca Pulido

© Fernando Alda © Fernando Alda via © Felipe Assadi + Francisca Pulido via © Felipe Assadi + Francisca Pulido

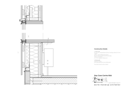
42. Råå Day Care Center / Dorte Mandrup Arkitekter 

via © Dorte Mandrup Arkitekter via © Dorte Mandrup Arkitekter

© Adam Mørk © Adam Mørk © Adam Mørk © Adam Mørk

43. Hábitat 6: Vivienda Modular para una persona / IGEO 

Courtesy of © IGEO Courtesy of © IGEO

Courtesy of © IGEO Courtesy of © IGEO Courtesy of © IGEO Courtesy of © IGEO

44. JFR / Fougeron Architecture 

via © Fougeron Architecture via © Fougeron Architecture

© Richard Barnes © Richard Barnes © Richard Barnes © Richard Barnes

45. Writer’s Shed / WSD Architecture 

via © WSD Architecture via © WSD Architecture

© Wai Ming Ng © Wai Ming Ng © Wai Ming Ng © Wai Ming Ng

46. Ruca Dwellings / Undurraga Devés Arquitectos 

via © Undurraga Devés Arquitectos via © Undurraga Devés Arquitectos

via © Undurraga Devés Arquitectos via © Undurraga Devés Arquitectos via © Undurraga Devés Arquitectos via © Undurraga Devés Arquitectos

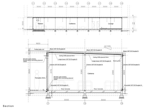
47. Cafeteria in Ushimado / Niji Architects 

via © Niji Architects via © Niji Architects

© Masafumi Harada / Niji Photo © Masafumi Harada / Niji Photo © Masafumi Harada / Niji Photo © Masafumi Harada / Niji Photo

48. Gardening center / Architekti DRNH 

via © Architekti DRNH via © Architekti DRNH

via © Architekti DRNH © Tomáš Malý © Tomáš Malý © Tomáš Malý

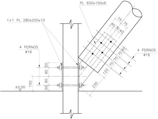
49. Nine Bridges Country Club / Shigeru Ban Architects 

via © Shigeru Ban Architects via © Shigeru Ban Architects

© Hiroyuki Hirai © Hiroyuki Hirai © Hiroyuki Hirai © Hiroyuki Hirai

50. Lo Cañas House / Francisco Abarca and Camilo Palma 

via © Francisco Abarca y Camilo Palma via © Francisco Abarca y Camilo Palma

© Eugenio Celedón © Eugenio Celedón © Eugenio Celedón © Eugenio Celedón

This posting includes an audio/video/photo media file: Download Now

Nema komentara:

Objavi komentar